服务电话:
18362832550
首页
齿轮减速机样本
齿轮减速机型号表
齿轮减速机装配图
齿轮减速机技术参数
样本下载
关于我们
公告:本厂配有大量现货,部分型号可当天发货。
型号列表
QJ-L140减速机
QJ-L170减速机
QJ-L200减速机
QJ-L236减速机
QJ-L280减速机
QJ-L335减速机
QJ-L400减速机
减速机
>
齿轮减速机装配图
>
QJ-L起重机减速机装配图
阅览次数: 更新时间:2016-07-26
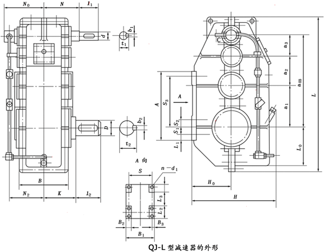
QJ-L起重机减速机装配图 JB/T8905.3-1999
QJ-L起重机减速机外形图
QJ-L起重机减速机装配形式
上一篇:
DCY硬齿面减速机装配图
下一篇:
QJ系列起重机减速机结构型式
QJ-L起重机减速机装配图相关参数
QJ-L起重机减速机
QJ-L起重机减速机技术参数
QJ-L起重机减速机安装尺寸
QJ-L起重机减速机装配图
QJ-L起重机减速机承载能力(工作别M5)
QJ-L起重机减速机承载能力(连续型
关闭
免费咨询
电话:18362832550
在线客服